[object Object]
sky
Ярмарка

новостроек и загородной недвижимости

4-5 апреля

Реклама ООО КАНТ. ИНН 1685013419. erid 2Vtzqx2GeNY

cherrycherryellipseellipsecherry
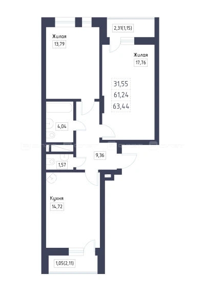
Планировка

2-комнатная квартира, №70

63.44/31.55/14.72 м²

1/10 этаж

Название ЖК:Стрела

Дом:1

11,466,600 ₽

Услуги компании - бесплатно!

Написать

Характеристики ЖК

  • Срок сдачиСрок сдачи

    Срок сдачи

    3 кв. 2026г.
  • КлассКласс

    Класс

    Комфорт
  • ЭтажностьЭтажность

    Этажность

    9
  • КорпусовКорпусов

    Корпусов

    1 корпус
  • Тип домаТип дома

    Тип дома

    Монолит-кирпич
  • ПарковкаПарковка

    Парковка

    Подземный
Ключ

Подберем эксперта для решения вашего вопроса

Ход строительства

Инфраструктура

Наверх